- Puissance de 6,8 à 9 kW
- Volume chauffé entre 6 et 14 m³
- Position au sol
- Garantie 2 ans
Poêle électrique Figaro
Une expérience de sauna captivante !
Le poêle Harvia Figaro est adapté pour les saunas de grandes capacité ayant un volume compris entre 6 et 14 m³. Sa conception vous permet d'avoir une grande surface de contact et un grande quantité de pierres jusqu'à 90 kg, pour des séances de sauna humides et confortables. Le compartiment étant ouvert de bas en haut facilite le versement de l'eau et garanti une chaleur uniforme et agréable même pour les bancs inférieurs.
Une installation simple puisque vous n'avez qu'à le poser sur le sol dos à une paroi.
Le Figaro est peint en noir brillant et la grille recouvrant le compartiment à pierres est en acier inoxydable.
Les commandes sont placées en bas sur la face avant du poêle.
Son design apporte une touche de modernité à l'intéreiur de votre sauna.
Caractéristiques des poêles électriques Figaro
|
Poêle Figaro 6.8 | Poêle Figaro 9 | |
|---|---|---|
|
Puissance kW |
6,0 | 9,0 |
| Taille sauna min m³ | 6 | 7 |
| Taille sauna max m³ | 10 | 14 |
| Hauteur du sauna min cm | 190 | 190 |
| Compartiment à pierres max kg | 90 | 90 |
| Dimensions largeur mm | 480 | 480 |
| Dimensions hauteur mm | 940 | 940 |
|
Dimensions profondeur mm |
260 | 260 |
|
Poids kg |
20 |
20 |
|
Tension d'alimentation 1 ou 3 phases |
230 V 1 N / 400 V 3N | 230 V 1 N / 400 V 3N |
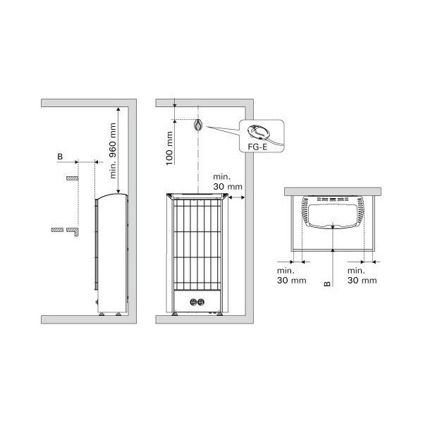
| Distance de sécurité par rapport à la paroi mm | 30 | 30 |
| Distance de sécurité B en avant en mm | 100 | 100 |
|
Distance de sécurité par rapport au plafond mm |
960 | 960 |
Schéma d'installation du poêle

Conseil du fabricant :
"N'oubliez pas que les parois et notamment le plafond d'une cabine de sauna à chauffage électrique requièrent une isolation thermique efficace. Chaque mètre carré de pierre, de verre ou de surface non isolée similaire équivaut à une augmentation de 1,2 m3 du volume de la cabine de sauna. La puissance du poêle doit donc être choisie en conséquence. Si la paroi intérieure de la cabine de sauna est composée de madriers non isolés, le facteur correspondant est de 1,5. Accordez également une grande attention à la ventilation de la cabine de sauna. Une circulation d'air efficace permet aux utilisateurs de respirer facilement un air intérieur pur."
Vous pourriez aussi aimer